7, rue de la Pompe 16th
W.T.S.R.
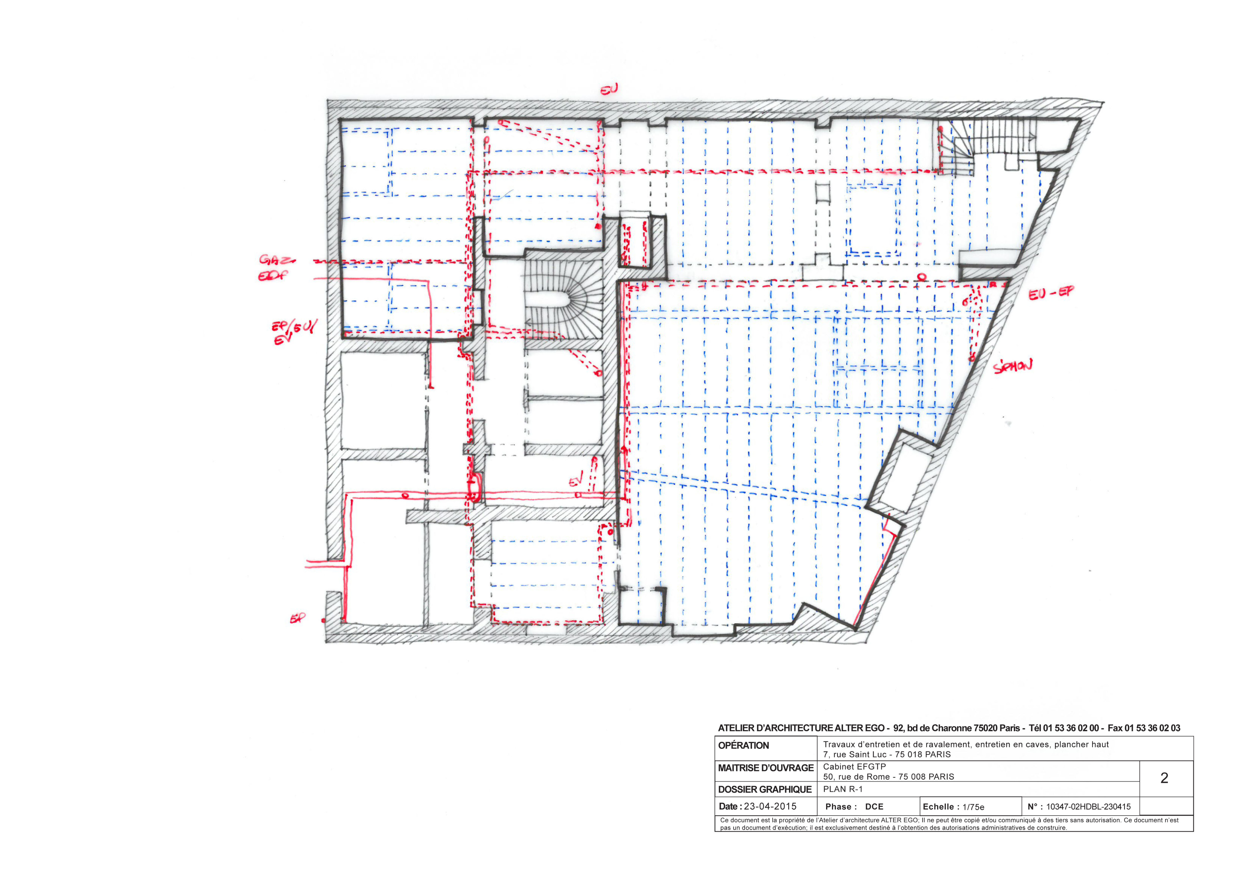
7, rue Saint-Luc 18th
C.c.B.R.W.
+
trades
320 m
2
façades + 400m
2
floors
240,000 € HT
Atelier d’Architecture Alter Ego
2015
Renovation of the courtyard and small courtyard façades, structural reinforcements in cellars and waterproofing of courtyard and small courtyard floors.
scaffolding
masonry-renov.-paint.
roof.-zincwork-plumb.
masonry-structure
ironwork
joinery
waterproofing
capillary treatment
DIA, DP, DCE, DET, OPC, AOR
MOP phases
>
<
14, rue Nollet 17th
S.C.I.c.R.Rf.F.B.T.W.N.Ss.Sr.Rd.
16, passage de Pékin 20th
S.C.I.c.R.Rf.F.B.T.W.N.Ss.Sr.Rd.
22, rue Fourcroy 17th
B.W.G.
26, avenue Reille 14th
U.G.B.W.R.
trades
430 m
2
facade
197,300€ HT
Atelier d’Architecture Alter Ego
2016
Refurbishment of the street side roof and facade
scaffolding
masonry-renov.-paint.
roof.-zincwork-plumb.
ironwork
woodwork
DP, ACT, DET, OPC, AOR
MOP phases
>
<
63, av. Parmentier 11th
H.S.C.g.W.T.
+
trades
4,500m
2
1,283,000€ HT
Atelier d’Architecture Alter Ego
2016
Renovation of street-facing, courtyard-facing and gable-end façades, repair of waterproofing on accessible terraces
scaffolding
masonry-renov.-paint.
traditional waterproof.
liquid waterproofing
ironwork
joinery
DET, OPC
MOP phases
>
<
trades
250m2 roofing + 200m2 masonry
311,000 € HT
2015
Roofs repair and overhaul,
gables refurbishment,
underground networks repair.
2016
structural repairs in a dwelling and gable end.
2017
terrace renovation.
scaffolding
masonry-renov.-paint.
roof.-zincwork-plumb.
masonry
plumbing
carpentry
ironwork
masonry-renov.-paint.
traditional waterproof.
DET, OPC, AOR
MOP phases
>
<
ALL
A. Adaptive Reuse
S. Street facade renovation
C. Courtyard renovation
c. Courette renovation
g. Gable facade renovation
I. External insulation adding
R. Specific reinforcement
Rf. Roofing renovation
F. Floor rework
G. Groundfloor rework
B. Basement rework
T. Terrace rework
W. Waterproofing work
U. Underground network rw
N. Water network refurb.
Ss. Sanitaty sewers rework
Sr. Staircase renovation
Rd. Internal redesign / reprogram
H. Historical study
D. Diagnosis / expertise
E. Energy audit
t. Training (DSA)
ABOUT
WORK
PUBLICATIONS
TEACHING
BARBARA LAMBEC
>
<
>
<